DETAIL

✱ 施設概要

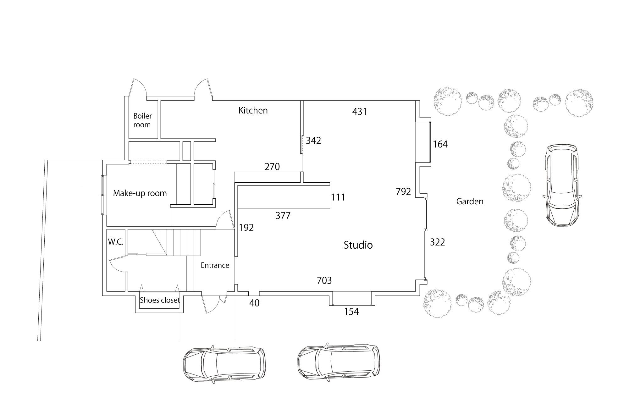
面積 1F 床面積 90㎡ / 庭面積 20㎡
2F 床面積 90㎡ 
天井高 1F 2.48m
2F 2.26m
設備 1F メイクルーム・キッチン・冷蔵庫
2F メイクルーム・洗面所
電気容量 一棟 8kw

HMI4KW 1灯 使用可能 C型電源より
ご利用可能時間 9:00 〜 19:00までに完全撤収 

閑静な住宅街の為、近隣協定にともない時間厳守となります。

営業時間を超えてご使用された場合次回からキープをお受け出来ないことがございます。

※スタッフが常駐しておりませんので搬入出の際のお時間等には制限がございます、

事前搬入などは必ずご連絡ください。詳細はお電話にてお問い合わせください。
何卒ご理解の程よろしくお願い致します。

 
駐車場 スタジオ敷地内の駐車場を3台ご利用いただけます。

✱ 図面

近隣駐車場     三井のリパーク港区白金台3丁目第2 東京都港区白金台3丁目14ー33ST.

PDFダウンロード

 

✱ スタジオ利用時の注意事項

 

  • スタジオ使用後は家具や備品などの現状復帰をお願いします。
  • 荷物の搬入出のお手伝いは出来かねます。
  • スタジオ内の家具は正規デザイナーズの物を取り揃えております。家具や内装への傷や破損、紛失などにより、修繕や購入の必要がある場合は費用を請求させていただく事になりますのでご注意ください。
  • スタジオアシスタントは在籍しておりません。
  • 荷物の搬入出のお手伝いは出来かねます。
  • 閑静な住宅街の為、9:00より前の搬入や撮影は基本的にお受けできませんので予めご了承下さい。
  • お客様のご要望によりお手伝いした際に生じた傷、破損、汚れ等に関しては、当スタジオでは一切の責任を負いかねます。
  • 前日搬入や荷物の配送等は予約状況によってお受け出来ない場合がございますので、必ず事前にお問い合わせ下さい。
  • 撮影当日や前日搬入出の際、大型の荷物( ベッド、ソファ、テーブル、冷蔵庫...etc)の運搬作業のお手伝いは出来かねます。必要な人数をご手配下さい。
  • スタジオ併設ガレージの駐車台数は、1F GARDEN・2F TERRACE、それぞれ各1台のご案内になります。 (一棟でご利用の場合は2台駐車可。)
  • マイクロバスは駐車出来ませんのでご了承ください。
  • 車のご移動は、お客様各自でお願い致します。
  • 常設家具に関してもレンタル等で変動する場合がございますので、予めご了承ください。撮影などにお使いの際は事前にお問い合わせください。
  • スタジオ内の家具・小物・備品等に破損、損傷があった場合は賠償金をご請求致します。
  • スタジオ内で発生した使用者側の損害(盗難、汚損、破損、火災等の不慮の事故・機材の破損及び駐車場内での事故等)に関しては、当スタジオでは一切の責任を負いかねますので、予めご了承ください。
  • 撮影後の忘れ物につきましては、各スタジオにて一定期間(2週間)保管致します。なお、保管期間内に引き取りが困難な場合は処分させていただきます。
  • 周辺住民にご迷惑のかかる撮影はその場で中止させていただきます。
  • 屋上撮影中に生じた不慮の事故(落下・怪我・機材破損等)に関しては、当スタジオでは一切の責任を負いかねますのでご了承ください。
  • スタジオ玄関前での撮影は15分以内の撮影でご利用いただけます。
  • スタジオの室内は土足厳禁です。
  • C型電源から照明機材のご使用におきましては、1時間につき ¥3000の電力使用料をいただいております。